Catesby Estates promoted a site for 140 homes and community facilities off Ampthill Road, Shefford, Bedfordshire.
An outline application for up to 140 homes on a site of 19.6 acres, offering wider community benefits including the donation of land for additional school playing fields was submitted in May 2014.
Following a refusal by Central Bedfordshire; Catesby Estates were successful in obtaining planning consent at an appeal in September 2015.
Catesby sold the strategic land site to Bovis Homes.

We’re actively seeking strategic land sites in Bedfordshire. With a proven track record and strong success rate, landowners in the county are welcome to contact us.
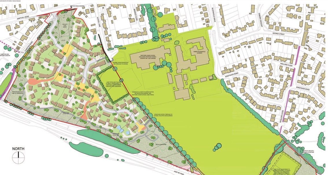
Catesby Estates promoted a site for 140 homes and community facilities off Ampthill Road, Shefford, Bedfordshire.
An outline application for up to 140 homes on a site of 19.6 acres, offering wider community benefits including the donation of land for additional school playing fields was submitted in May 2014.
Following a refusal by Central Bedfordshire; Catesby Estates were successful in obtaining planning consent at an appeal in September 2015.
Catesby sold the strategic land site to Bovis Homes.

We’re actively seeking strategic land sites in Bedfordshire. With a proven track record and strong success rate, landowners in the county are welcome to contact us.