The two greenfield land parcels total 139.1 acres, and lie within the administrative area of Wealden District Council and have potential for new homes, affordable housing and community facilities including sports pitches and allotments.
The sites are within an established residential area with a range of services and facilities within walking distance.
Myron Osborne, Land and Development Director for Catesby Estates said; “We are pleased to have secured these well located and sustainable potential residential sites for our land promotion portfolio. Both sites are identified as draft allocations which form part of Hailsham North (HN1) in the emerging Wealden Local Plan.”
“The in-house planning and technical teams will be now be working with the council and other local stakeholders, to bring these sites forward for new homes along with a range of community facilities as outlined in policy recommendations.”
Friday 27th September 6.00pm – 8.30pm Hellingly Village Hall - North Street, Hellingly
Saturday 28th September 8.30am – 11.30am James West Community Centre - Brunel Drive, Hailsham
If you are unable to attend the consultation events, you can find out more and track our progress here (The consultation website will go live on Friday 27th September)
Catesby Estates plc are promoting land at Park Farm, Hellingly with potential for a range of new homes including policy compliant affordable housing and significant public open space.
Please come along and view our proposals; we will use comments received to shape our final plans for submission as an outline planning application to Wealden District Council later in the year.
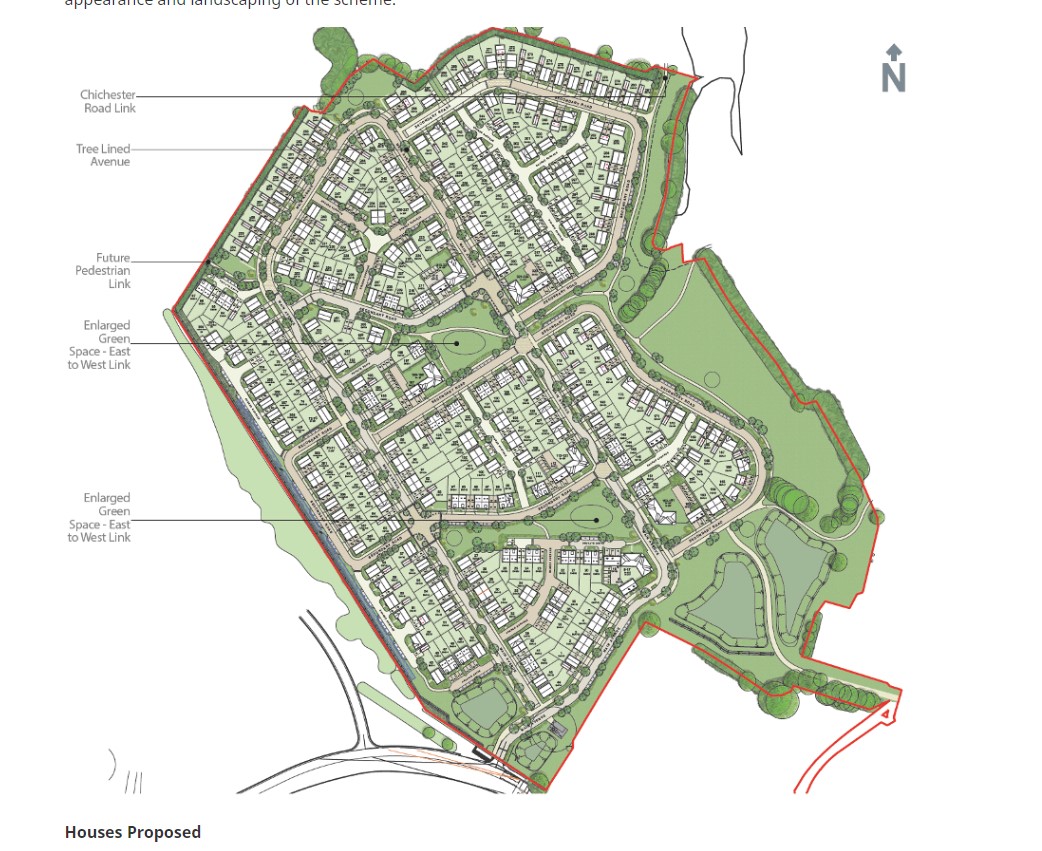
Catesby Estates have formally submitted the outline planning application for up to 370 homes on land parcel HN1C to Wealden District Council.
The Council will now check the application is valid, which generally takes 2 weeks. After which we will receive an application reference number and the application will be uploaded to the Council website.
Neighbours and statutory consultees will be formally consulted by the Council directly in due course.
Following a virtual planning committee, we are pleased to announce that Wealden District Council, in line with the Planning Officer’s recommendation has resolved to grant outline planning permission for 370 new homes on a 40.8 acre site known as Park Farm, Hellingly, Hailsham
Land to the north of Hailsham including Park Farm has been identified by the Council as a strategic location for growth.
The site also includes 35% affordable housing, extensive public open space and play areas including an extension to the existing Hellingly Country Park.
Victoria Groves, Senior Planning Manager for Catesby oversaw the application “We pride ourselves on our approach to public consultation and working closely with communities to deliver sensitively designed development with additional community benefits.”
“We held pre-application discussions with both the District and Parish Council and also neighbouring Hailsham Town Council alongside two community events so residents could view plans and provide feedback on our proposals.”

Catesby Estates are pleased to announce the sale of a 40.8 acre residential development site in Hellingly, Hailsham to Taylor Wimpey.
Wealden District Council Planning Committee followed the Planning Officer’s recommendation for approval, and resolved to grant outline planning permission at a virtual committee, with the final signing of the Section 106 taking place in April this year.
The site known as Park Farm West includes 370 new homes, 35% affordable housing, extensive public open space and play areas including an extension to the existing Hellingly Country Park.
Andy Wright, Senior Land Manager for Catesby Estates said, “Land to the north of Hailsham including our site, had been identified by the Council as a strategic location for growth.”
“Our in-house planning, technical and consultation teams worked closely with the local community to deliver a sensitively designed development with significant community benefits.”
“We engaged in extensive pre and post application discussions with both the District and Parish Councils, worked very closely with the Ward Councillor and presented to neighbouring Hailsham Town Council. In addition we also held two community events so residents could view plans and provide feedback on our proposals.”
“Taylor Wimpey have already carried out public consultation on their Reserved Matters application, and we hope to see this development moving forward in the near future.”
The landowners were represented by Leo Hickish and Oliver Robinson at Batcheller Monkhouse, and Lewis Harrison, Martin Cooper and Adam Lelliot from the South East Division worked on securing this site for Taylor Wimpey.
We’re actively seeking strategic land sites in Hailsham. With a proven track record and strong success rate, landowners in the county are welcome to contact us.
The two greenfield land parcels total 139.1 acres, and lie within the administrative area of Wealden District Council and have potential for new homes, affordable housing and community facilities including sports pitches and allotments.
The sites are within an established residential area with a range of services and facilities within walking distance.
Myron Osborne, Land and Development Director for Catesby Estates said; “We are pleased to have secured these well located and sustainable potential residential sites for our land promotion portfolio. Both sites are identified as draft allocations which form part of Hailsham North (HN1) in the emerging Wealden Local Plan.”
“The in-house planning and technical teams will be now be working with the council and other local stakeholders, to bring these sites forward for new homes along with a range of community facilities as outlined in policy recommendations.”
Friday 27th September 6.00pm – 8.30pm Hellingly Village Hall - North Street, Hellingly
Saturday 28th September 8.30am – 11.30am James West Community Centre - Brunel Drive, Hailsham
If you are unable to attend the consultation events, you can find out more and track our progress here (The consultation website will go live on Friday 27th September)
Catesby Estates plc are promoting land at Park Farm, Hellingly with potential for a range of new homes including policy compliant affordable housing and significant public open space.
Please come along and view our proposals; we will use comments received to shape our final plans for submission as an outline planning application to Wealden District Council later in the year.
Catesby Estates have formally submitted the outline planning application for up to 370 homes on land parcel HN1C to Wealden District Council.
The Council will now check the application is valid, which generally takes 2 weeks. After which we will receive an application reference number and the application will be uploaded to the Council website.
Neighbours and statutory consultees will be formally consulted by the Council directly in due course.
Following a virtual planning committee, we are pleased to announce that Wealden District Council, in line with the Planning Officer’s recommendation has resolved to grant outline planning permission for 370 new homes on a 40.8 acre site known as Park Farm, Hellingly, Hailsham
Land to the north of Hailsham including Park Farm has been identified by the Council as a strategic location for growth.
The site also includes 35% affordable housing, extensive public open space and play areas including an extension to the existing Hellingly Country Park.
Victoria Groves, Senior Planning Manager for Catesby oversaw the application “We pride ourselves on our approach to public consultation and working closely with communities to deliver sensitively designed development with additional community benefits.”
“We held pre-application discussions with both the District and Parish Council and also neighbouring Hailsham Town Council alongside two community events so residents could view plans and provide feedback on our proposals.”

Catesby Estates are pleased to announce the sale of a 40.8 acre residential development site in Hellingly, Hailsham to Taylor Wimpey.
Wealden District Council Planning Committee followed the Planning Officer’s recommendation for approval, and resolved to grant outline planning permission at a virtual committee, with the final signing of the Section 106 taking place in April this year.
The site known as Park Farm West includes 370 new homes, 35% affordable housing, extensive public open space and play areas including an extension to the existing Hellingly Country Park.
Andy Wright, Senior Land Manager for Catesby Estates said, “Land to the north of Hailsham including our site, had been identified by the Council as a strategic location for growth.”
“Our in-house planning, technical and consultation teams worked closely with the local community to deliver a sensitively designed development with significant community benefits.”
“We engaged in extensive pre and post application discussions with both the District and Parish Councils, worked very closely with the Ward Councillor and presented to neighbouring Hailsham Town Council. In addition we also held two community events so residents could view plans and provide feedback on our proposals.”
“Taylor Wimpey have already carried out public consultation on their Reserved Matters application, and we hope to see this development moving forward in the near future.”
The landowners were represented by Leo Hickish and Oliver Robinson at Batcheller Monkhouse, and Lewis Harrison, Martin Cooper and Adam Lelliot from the South East Division worked on securing this site for Taylor Wimpey.
We’re actively seeking strategic land sites in Hailsham. With a proven track record and strong success rate, landowners in the county are welcome to contact us.